2к Григоренка Петра просп. 33/44 (№ 213-108-091)
Цена: 78 000 $

Адрес: Григоренка Петра, 33/44, Киев, Дарницкий, м. Позняки
Характеристики
| Цена: | 78 000 $ |
|---|---|
| № объекта: | 213-108-091 |
| Комнат: | 2 |
| Этаж: | 3 / 16 |
| Площадь: | 77 / - / 10 м2 |
Описание
Продам 2-кімнатну квартиру за адресою Григоренка Петра просп. 33/44!
Супер локація, метро Позняки в пішій доступності, поруч парк, та вся необхідна інфраструктура.
Цегляний будинок 1998 року побудови, дуже теплий, товщина стіни 50 см, під'їзди охайні, 2 НОВІ ліфти, завжди сидить консьєрж, домофон.
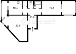
3-й поверх, площа: 77м2
Квартира в житловому стані, на підлозі паркет, правильне планування: 2 окремі спальні, роздільний санвузол, кладова, великий коридор з шафою купе, великий балкон, який можна використовувати як додаткову кімнату, комфортиний поверх, тамбур на 2 квартири, металопластикові склопакети.
Один власник, без доручень, прямий продаж











